Технически Университет
background image

Технически Университет

София

Дисциплина: 

Товаро­разтоварна техника и процеси в транспорта

Студент: 

Фак. №

Факултет:ТФ

Специалност:ТрТТ

Група:91

Дата:28.09.2006г.

Проверил:

оценка

Тема:

 

Изследване на производителността на кран от мостов вид

1. Кратки теоритични данни

Товарно­разтоварни   машини   (ТРМ)   с   циклично   действие

  –   при   тях   работния

елемент на машината (ролков блок с кука, грайфер, товарохватно приспособление и др.)
извършва   непрекъснато   повтарящи   се   в   определена   последователност   действия   за

преместване на обработвания товар.

Цикъл   на   ТРМ

  –   съвкупност   от   непрекъснато   повтарящи   се   в   определена

последователност операции на работния елемент на ТРМ с или без товар, с последващо
връщане на  работния елемент в начално (изходно) положение.

Продължителност на цикъла на ТРМ

 – времето, необходимо за извършване на един

цикъл на ТРМ.

Производителност на ТРМ

  – манипулираното от ТРМ количество товар за единица

време.

Според това как се измерва обработения товар, различаваме:

­ масова производителност (t/h; kg/s; t/год. и др.);

­ обемна производителност (m

3

/h; kg

3

/s и др.);

­ бройна производителност (бр./h; бр./s; бр./год. и др.).

В зависимост от експлоатационните условия, различаваме:

Конструктивна (теоретична) производителност (П

К

):

;

.

,

3600

h

бр

Т

П

Ц

К

,

,

.

3600

h

t

Q

Т

П

КР

Ц

К

където: 

Ц

T

 е продължителността на цикъла на ТРМ, s; 

КР

Q

 ­ товар с номинална маса,

който може да бъде повдигнат от ТРМ, t. 

Техническа производителност (П

Т

):

;

,

.

h

t

К

П

П

Т

К

T

.;

,

коеф

Q

Q

К

КР

T

Т

 

,

1

0

Т

К

където: 

Т

К

 е коефициент за използване на ТРМ по товароподемност, коеф.; 

T

Q

 ­ масата

на обработвания товар, t.

Експлоатационна производителност (П

Е

):

background image

;

,

.

.

3600

.

.

.

h

t

К

Q

Т

К

К

П

К

П

П

ВР

Т

Ц

ВР

Т

К

ВР

T

E

.;

,

коеф

Т

Т

Т

Т

Т

К

ПР

Р

Р

Е

Р

ВР

 

,

1

0

ВР

К

където: 

ВР

К

 е коефициент, отчитащ използването на ТРМ по време, коеф.; 

Е

Т

 ­ времето

за експлоатация на ТРМ, h; 

Р

Т

 ­ времето през което ТРМ работи и обработва товари, h;

ПР

Т

 ­ времето през което ТРМ не обработва товари (престой), h.

Фактическа   (реална)   производителност

  –   служи   за   определяне   на   реално

обработеното   количество   товар   на   товарно­разтоварен   фронт   (ТРФ)   при   конкретни
условия за определен период от време.

Кранове от мостов вид

Козлови кран

  – ТРМ с циклично действие от мостов вид. Главната греда на крана е

разположена върху опори (козли),  движещи се по релсов път, намиращ се на нивото на

товарно­разтоварната площадка (схема 2, схема 3).

Мостови кран

 ­ ТРМ с циклично действие от мостов вид. Главната греда на крана се

движи по релсов път, разположен на определена височина от пода. Предназначен за
работа в открити и закрити ТРФ и складове (схема 4, схема 5).

Товарна диаграма на кран от мостов вид

 – изобразява товароподемността на ТРМ в

зависимост   от   разположението   на   работния   елемент   по   дължина   на   главната   греда

(моста) на крана (схема 1).

Схема 1 ­ Товарна диаграма

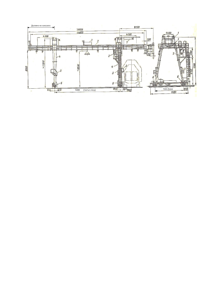
Схема 2 ­ Двуконзолен козлови кран (с кранова количка)

Q

КР

, t

Разположение на товара по дължина на 

главната греда на крана

const

background image

Основни елементи (схема 2): 1 – товароподемна кранова количка (стояща); 2 – мост
(главна греда) на крана; 3 – кабина; 4 – опори (козли); 5 – мостик за преминаване върху

голямотонажни   контейнери;   6   –   ходови   колела;   7   –   греда   за   преглед   и   ремонт   на
крановата количка;

Схема 3 ­ Двуконзолен козлови кран (с телфер)


Това е само предварителен преглед!

Изследване на производителността на кран от мостов вид

Изследване на производителността на кран от мостов вид, товаро-разтоварна техника и процеси в транспорта...

Изследване на производителността на кран от мостов вид

Предмет: Транспорт, Технически науки
Тип: Курсови работи
Брой страници: 11
Брой думи: 1182
Брой символи: 7710
Изтегли
Този сайт използва бисквитки, за да функционира коректно
Ние и нашите доставчици на услуги използваме бисквитки (cookies)
Прочети още Съгласен съм